Salta al contenuto principale

Povertà estrema - Stazioni di posta

Descrizione progetto

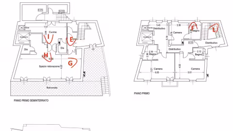
L’intervento prevede la riqualificazione dell’edificio “Villa San Teodoro”, sito in via Dino Col civ. 13, già residenza per anziani e attualmente dismesso, e la sua rifunzionalizzazione alla destinazione di polo di accoglienza temporanea, in questa fase per quanto attiene le opere strutturali e sull’involucro. 

Obiettivo del progetto è rafforzare il sistema di risposta alle povertà ed alle gravi marginalità, attraverso la promozione di una “Stazione di Posta” (PNRR, M5C2, linea di investimento 1.3.2.), nel più ampio processo di costituzione di un Centro Servizi per le povertà, utile al potenziamento dell’attuale sistema di offerta di servizi ed interventi a favore delle povertà e alla predisposizione di soluzioni alloggiative di “Housing First” (PNRR, M5C2, linea di investimento 1.3.1), temporanea ma di ampio respiro, articolata in appartamenti singoli da destinarsi a persone e/o piccoli nuclei familiari in situazioni di povertà estrema. 


Stato di avanzamento

 
 
DA ATTIVARE
IN CORSO
CONCLUSO
Missione:
Missione 5 - Inclusione e coesione
Componente:
C2
Amministrazione centrale responsabile:
Ministero del Lavoro e delle Politiche Sociali
Direzione responsabile competente:
Direzione Politiche sociali e Welfare cittadino/Direzione di Area Infrastrutture Opere pubbliche
Soggetto attuatore:
Comune di Genova
Localizzazione:
Comune di Genova
Investimento:
1.3 Povertà estrema - Stazioni di posta
CUP:
B34H21000150001
Costo PNRR:
1.090.000,00€
Costo PNC:
0,00€
Decreto Aiuti (DL 50/2022):
0,00€
Cofinanziamento ComGe/altre fonti:
0,00€
Finanziamento ministeriale:
0,00€
Ultimo aggiornamento:
Fonti: strutture comunali, ReGiS.