Salta al contenuto principale

Vico alla Posta Vecchia, civv. 1 e 10: realizzazione di un condominio etico

Descrizione progetto

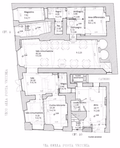
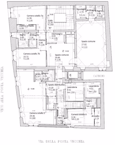
Il progetto complessivo prevede il recupero dei due immobili adiacenti, collocati rispettivamente in via della Posta Vecchia 10 e vico alla Posta Vecchia 1, con lo scopo di realizzare un'attività di housing sociale, un ostello per accoglienza turistica e uno spazio dedicato alla ristorazione collettiva. 

Presentano, globalmente, sette livelli fuori terra, un livello sottotetto, un cavedio in comune nonché due fronti liberi prospicienti sulle suddette vie. 

Il progetto prevede, a livello strada, la realizzazione di locali destinati alla ristorazione collettiva a cui accedere da vico alla Posta Vecchia. L’attività di ristorazione si innesta nel progetto di condominio etico e costituisce uno dei nodi della proposta di sviluppo della comunità sociale e territoriale. 

Per quanto riguarda i livelli superiori, accessibili tramite installazione di ascensore, il progetto prevede la realizzazione di camere di ostello con relativi servizi igienici e di appartamenti destinati al social-housing. 


Stato di avanzamento

 
 
DA ATTIVARE
IN CORSO
CONCLUSO
Missione:
Missione 5 - Inclusione e coesione
Componente:
C2
Amministrazione centrale responsabile:
Ministero delle infrastrutture e dei trasporti
Direzione responsabile competente:
Direzione di Area Infrastrutture Opere pubbliche
Soggetto attuatore:
Comune di Genova
Localizzazione:
Comune di Genova
Investimento:
2.3 Programma innovativo della qualità dell'abitare
CUP:
B37H21000960001
Costo PNRR:
3.424.010,33€
Costo PNC:
0,00€
Decreto Aiuti (DL 50/2022):
0,00€
Cofinanziamento ComGe/altre fonti:
16.964,40€
Finanziamento ministeriale:
0,00€
Ultimo aggiornamento:
Fonti: strutture comunali, ReGiS.